Жилой дом-коммуна. Глава из книги «Эль Лисицкий. Россия. Реконструкция архитектуры в Советском Союзе» издательства ЕУСПб

Издательство Европейского университета в Санкт-Петербурге выпустило в свет очередные исследования по авангарду — книги вокруг художника Лазаря (El /Эль) Лисицкого и поэта Алексея Чичерина, каждый из которых манифестировал себя как КОНСТРУКТОРА.

«Электронекрасовка» публикует главу «Жилой дом-коммуна» из книги «Эль Лисицкий. Россия. Реконструкция архитектуры в Советском Союзе». 15 марта в 19:30 в конференц-зале Библиотеки имени Н.А. Некрасова пройдет презентация и обсуждение книг Лазаря Лисицкого и Алексея Чичерина.

Жилой дом-коммуна

Жилищная проблема — одна из самых важных для всей Европы. Если перед Западом задача стояла в том, чтобы возобновить в изменившихся экономических и технических условиях строительную деятельность, прерванную войной, то в России решение жилищного вопроса стало социальной проблемой огромной культурной важности.

В нашей стране устранены все существенные различия между видами жилья — будь то подвальная дыра, в которой ютился рабочий большого города, многокомнатная квартира или частная вилла. Перед советским архитектором была поставлена задача создать в качестве жилого стандарта новый тип жилой ячейки, предназначенной для масс, а не для отдельных, конфликтующих друг с другом частных лиц, как на Западе.

Хорошим примером такого жилья является бревенчатый дом, который за века сформировал соответствующий конструктивно-технический строительный стандарт и который до сих пор активно используется подавляющим большинством сельского населения. Этот дом является продуктом ручного труда, но это массовый продукт, сконструированный и рассчитанный во всех своих частях таким образом, чтобы строитель мог собрать его самостоятельно (сухая сборка). Такая же система использовалась и в городе до тех пор, пока индустриализация не привела к окончательному разрыву между городом и деревней.

Жилые строения в Москве построены из дерева <…> крыши крыты тесом <…> Поэтому часто происходят сильные пожары <…> Погорельцы могут обзавестись новыми домами: за городской стеной на особом рынке есть много срубов, частью сложенных, частью разобранных. Их можно купить недорого, доставить на место и собрать. Вышеназванный рынок срубов <…> находится в части города <…> из которой купленный дом может быть доставлен в течение двух дней для сборки в любой конец города. Балки уже пригнаны друг к другу, и покупателю остается только сложить их вместе и законопатить щели мхом…

А. Олеарий. Путешествие в Московию, 1636

Я привел этот отрывок и для того, чтобы показать, в нашем народе всегда существовали здоровые коллективные импульсы, а также чтобы подчеркнуть, что единообразие и стандартизация не обязательно ведут к примитивному упрощению.

В будущем нам нужно будет брать в расчет, с одной стороны, личные и особенные требования к жилью, а с другой — общие социальные условия. Так, приготовление пищи должно быть перенесено из частной отдельной кухни в общую кухню-лабораторию, обед — в общественные столовые, воспитание детей — в детский сад и школу. При таком подходе мы можем рассчитать и вычесть из общей суммы жилой площади то пространство, которое требуется для личной жизни, исходя не только из сегодняшнего недостатка жилой площади, но и из требований будущего. Соответственно, конструкция и размеры коммунальных удобств должны становиться все более гибкими. В итоге архитектура выражает социальные условия и обретает новое значение эффективного элемента общественного жизнеустройства. На сегодня цель состоит в переходе от жилища как совокупности множества частных квартир к жилкоммунам.

До сих пор строительная деятельность жилищно-коммунальных хозяйств и крупных центральных кооперативов проявляла себя в односторонней борьбе с нехваткой жилья в нашей стране. Радикальных экспериментов в создании нового жилья фактически не было. Архитектурный факультет ВХУТЕМАСа получил от строительного отдела Моссовета задание спроектировать поселение. Мы приводим здесь пример одного решения: круглая башня задумана как дом для несемейных и состоит из отдельных комнат ячеек площадью 6 × 9 метров. Для общественной деятельности предназначена примыкающая к башне хозяйственно-бытовая постройка.

Экономические соображения — главный фактор в данном случае. Группировка большого числа жилъячеек дает в результате коридор-аркаду и позволяет сократить общее количество лестниц.

Г. Кочар (ВХУТЕИН, мастерская Н. Ладовского). Проект круглого жилого корпуса для несемейных (Измайловский поселок в Москве). 1928. План.

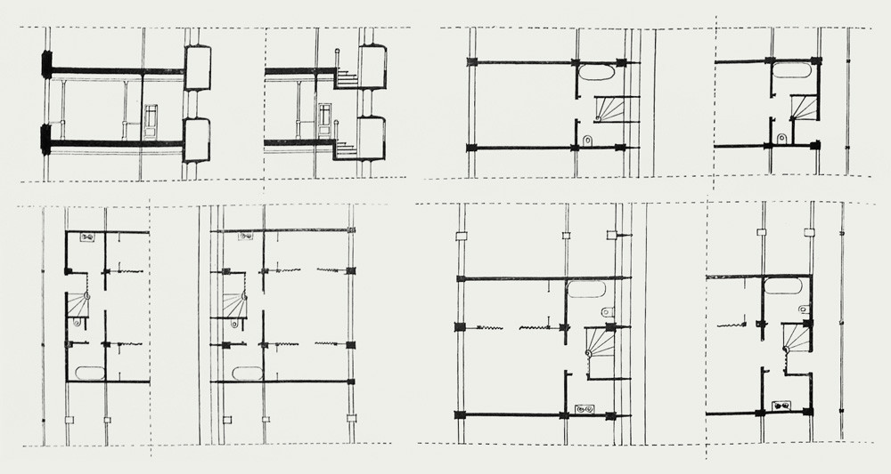
Оригинальным изобретением является полуэтаж-коридор А. Сильченкова. Он расположил сквозной коридор вдоль наружной стены, благодаря чему помещения за коридором получают прямой свет, и одновременно отпадает необходимость в ряде лестничных клеток. Вдоль этого коридора располагаются жилые ячейки, состоящие из одной, полутора или двухкомнатных единиц, каждая из которых снабжена ванной и кухней.

A. Сильченков. Проект коммунального дома с консольными коридорами. 1929. Разрез и планы.

Разумеется, эта система пригодна и для ряда других построек. В итоге у нас есть действительно новые типовые структуры жилья. Эти системы стимулируют производство новых материалов, они дают проектировщику надежные пластические элементы, а первопроходцам культуры — новые возможности для формирования коллективов. Строительный комитет экономического управления стал одним из государственных учреждений, которые постоянно заняты радикальными поисками решения жилищных проблем.

На сегодня разработаны следующие типы жилья:

Тип А: Блоки обычных индивидуальных квартир превращаются здесь в дом-коммуну за счет сквозного коридора с отдельными комнатами, прилегающими к нему на нижних этажах. 

Секция типизации Стройкома РСФСР (под руководством М. Гинзбурга). Проект коммунального дома с квартирами А-2 и А-3. 1928. Аксонометрия. План этажа с коридором. Разрез. План однокомнатной квартиры.

Коридор соединяет лестничные пролеты с коммунальным центром (столовой, комнатой для отдыха, комнатой для детских игр и т. д.).

Тип Е: Дом-коммуна с 360 отдельными комнатами на одного человека. Шестиэтажный дом состоит из двух равных частей по три этажа каждая. Сообщение обеспечивается по коридору, расположенному на уровне третьего этажа. Маленькие открытые лестничные пролеты соединяют коридор с лестничными площадками нижнего или верхнего этажа. С каждой лестничной площадки можно попасть в четыре отдельные комнаты.

Секция типизации Стройкома РСФСР (под руководством М. Гинзбурга). Проект коммунального дома с жилыми ячейками Е-1. 1928. Перспективный вид коммунального этажа. Перспективный вид внутренних лестниц. Поперечный разрез. Продольный разрез по внутренним лестницам. План коммунального этажа. Фрагменты планов жилого и коммунального этажей.

Лестницы, расположенные параллельно линии направления здания, образуют цельную систему, освещенную через остекленную односкатную крышу. Центральный коридор расширяется в коммунальные помещения.

Тип F имеет коридор, обслуживающий два этажа. 

Секция типизации Стройкома РСФСР (под руководством М. Гинзбурга). Проект коммунального дома на базе жилой ячейки F. 1928. Разрез. Планы ячеек. Планы этажей (с коридором и без).

Жилые ячейки полутораэтажные, с жилым помещением высотой от 3,25 до 3,50 метра и спальной нишей высотой от 2,15 до 2,25 метра с прилегающей ванной. Пространство, сэкономленное на разнице потолков, используется для коридора, который соединяет жилой блок с коммунальным центром, где находятся кухни, столовые, комнаты для чтения и отдыха и игровые для детей.

Все эти системы очень подвижны и могут быть перекомпонованы в зависимости от размеров территории, требуемого количества квартир и т. д. Приведу еще одно решение жилкоммуны, предложенное Ленинградским строительным институтом. Проект состоит из замкнутого симметричного трехосного корпуса из шести этажей, рассчитанного на 660 жильцов.

К. Иванов, Ф. Терехин и П. Смолин (Ленинградский институт гражданских инженеров). Проект коммунального дома. 1927. Планы этажей.

Один коридор обслуживает три этажа. Жилые ячейки состоят из двух или трех комнат. Три основных типа общественных помещений (столовая, детский центр, центр отдыха) расположены в крыльях первого этажа каждого здания.

Независимо от того, какой схеме организации отдается предпочтение — горизонтальной (коридор) или вертикальной (лестничная клетка) — в этих проектах, важно то, что жилой блок, обычно представляющий арифметическую сумму самодостаточных частных квартир, трансформируется здесь в синтетический комплекс совместного проживания. Проектирование подобного жилья упростится и общая структура здания станет более гибкой, когда будут ясны функции индивидуальных элементов. Все эти изобретения и реконструкции индивидуальных элементов преследуют общую цель — определить путь, по которому должно развиваться жилье социалистического общества. Это одна из главных задач реконструкции нашей архитектуры.

Глава из книги «Эль Лисицкий. Россия. Реконструкция архитектуры в Советском Союзе» издательства ЕУСПб

Больше про книги и интересные находки вы найдёте в telegram-канале «Электронекрасовка» (@electronekrasovka) и в нашем паблике «ВКонтакте». Подписывайтесь!